
*Pictures are Conceptual, subject to Change without notice & may have upgrades shown. Please consult project manager or onsite agent for any questions or confirmation
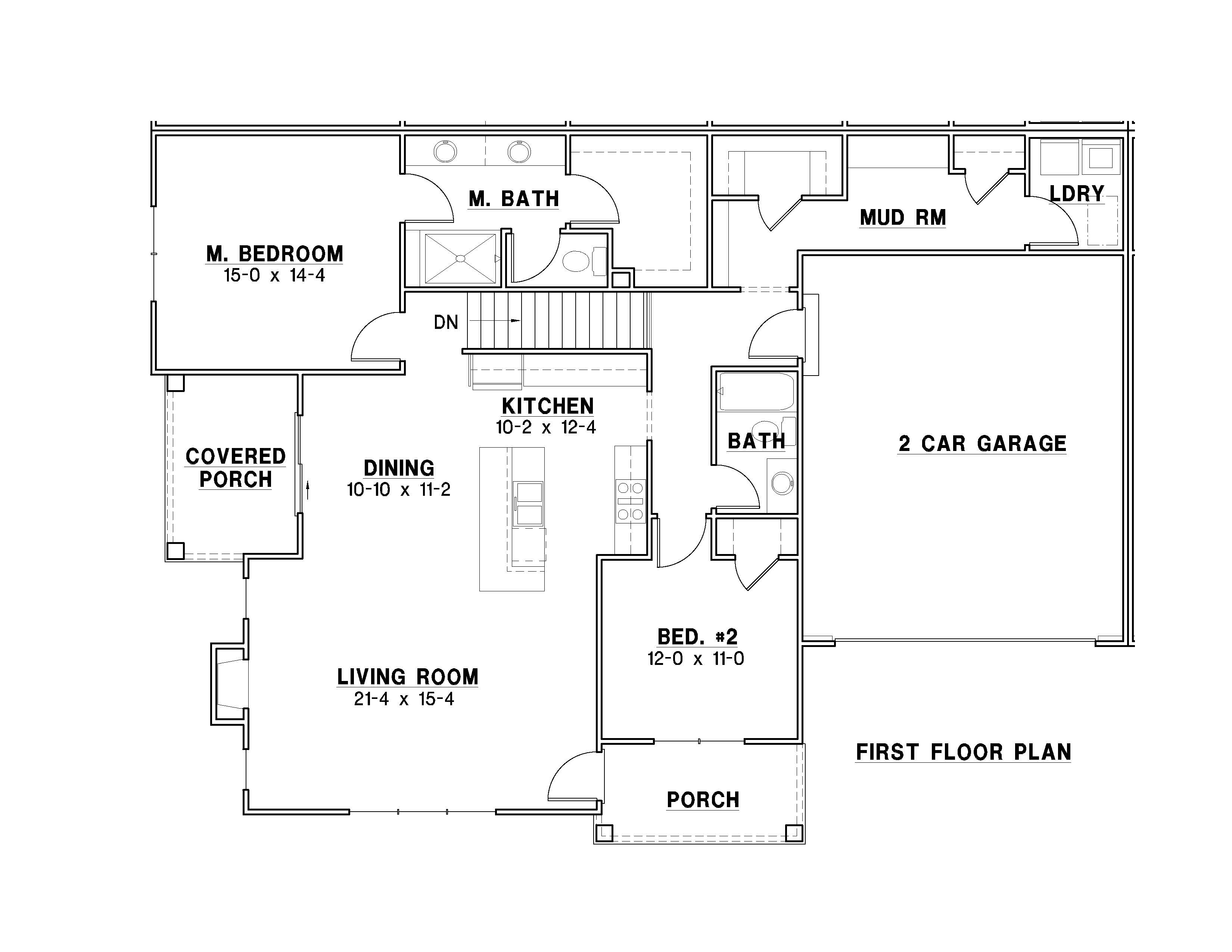
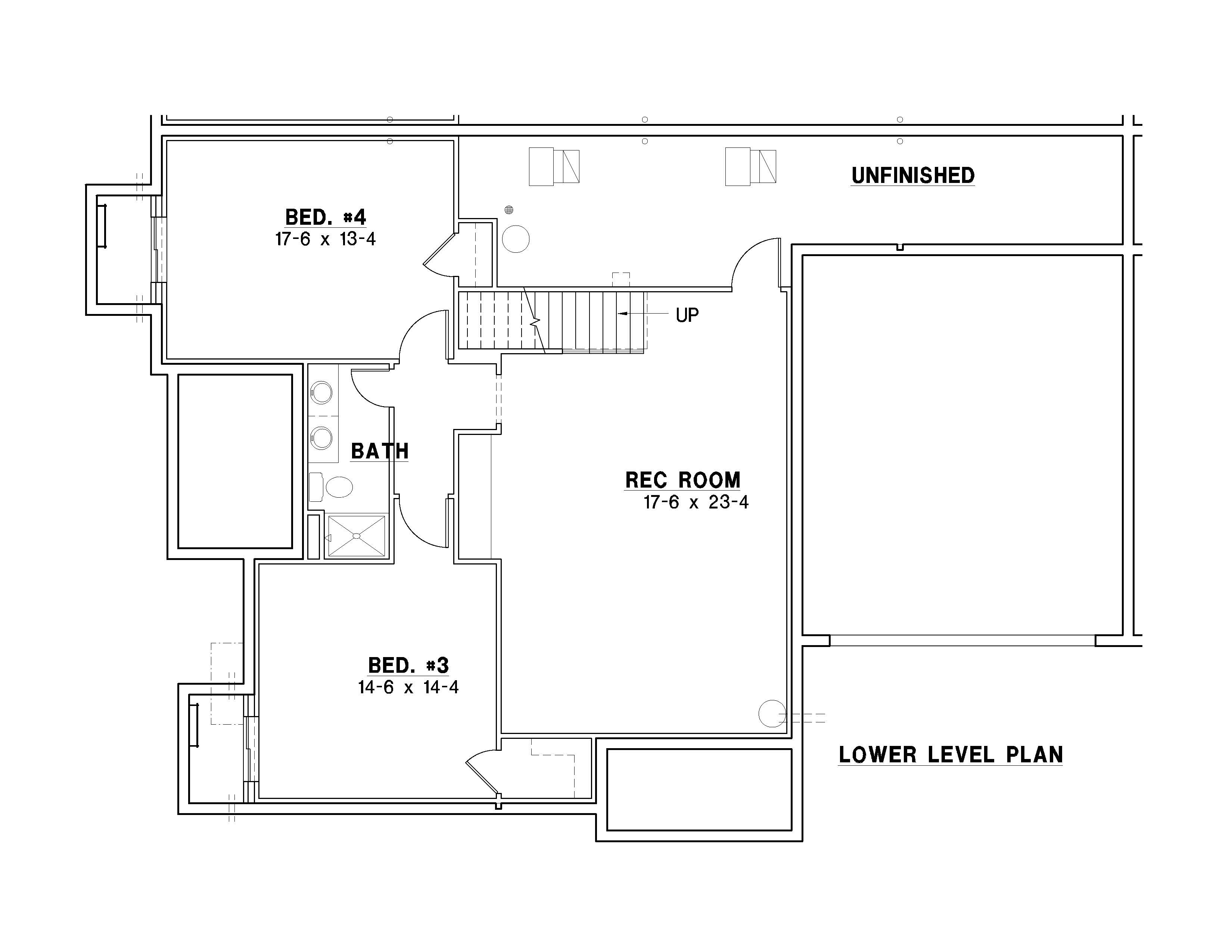
Move-in Ready Maintenance Provided Ranch Villa! These stunning Villas feature an open floor plan with 10’ ceilings, hardwood floors, and a light-filled living room with stone fireplace. The gourmet kitchen includes stainless steel appliances, custom cabinetry, under-cabinet lighting, and a walk-in pantry, plus a main-level mudroom and built-in desk area. The primary suite offers a walk-in closet and beautifully tiled bath. The lower level adds a spacious rec room with dry bar, two additional bedrooms, and a full bath—totaling four bedrooms. Lawn care, snow removal, and exterior maintenance (including roof) are all included.

